In my commercial design concepts class, I chose to redesign West Hollywood's, Cecconi's restaurant. It would be located in South Beach, Miami, taking into consideration the city's vibrant atmosphere and unique culinary culture. Drawn to Cecconi's unique ambiance and dining experience, I carefully curated images reflecting its distinct charm.
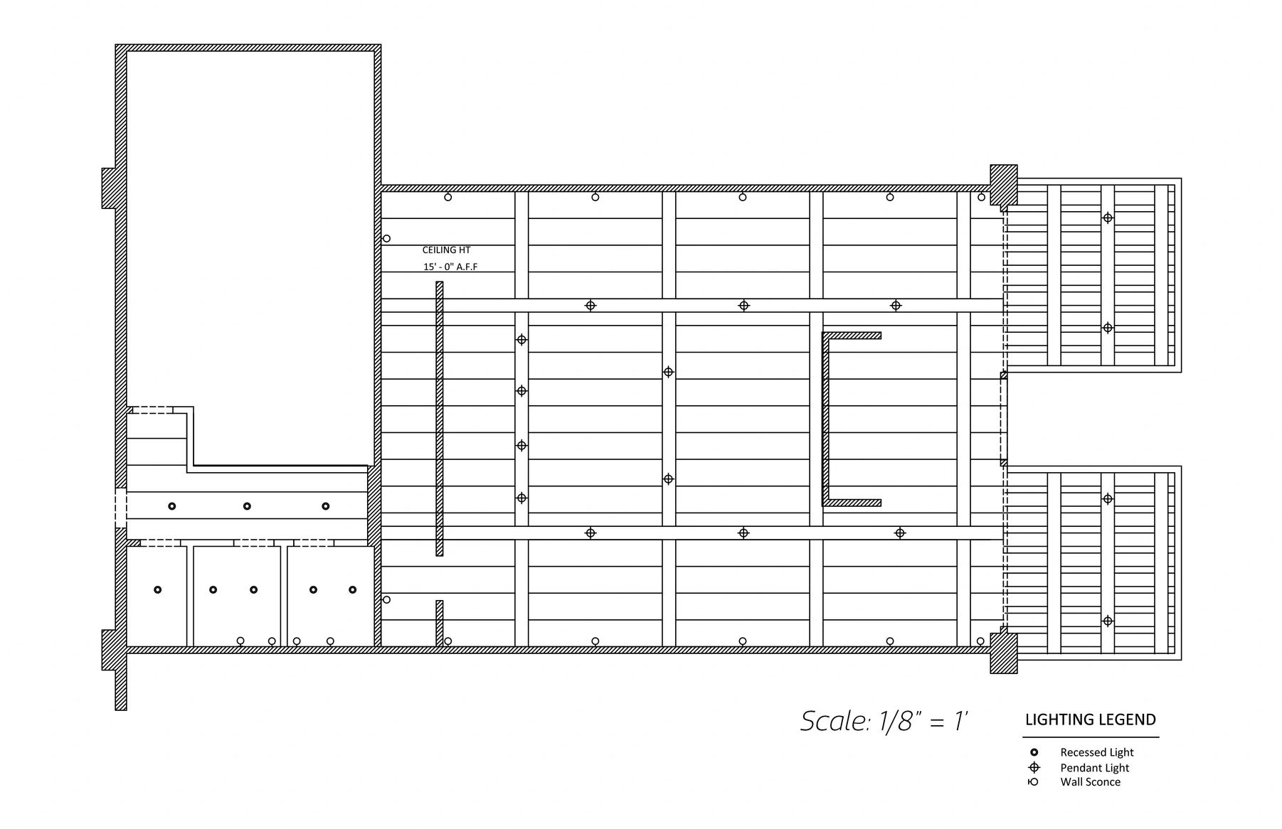
Crafting a meticulous floor plan was paramount to enhancing the dining experience, and RCP elevations were thoughtfully designed to capture every detail. Deliberate choices in color scheme and materials were made to harmonize with Miami's sophisticated lifestyle.
Below, you'll find my work, a visual representation of how I sought to elevate Cecconi's in Miami, blending admiration for its essence with a passion for innovative commercial design. Explore the transformation of this culinary space tailored for the dynamic Miami scene.

Cecconi's Floor Plan

Cecconi's Construction Plan

Cecconi's Reflected Ceiling Plan

Cecconi's Front Elevation

Cecconi's Bar Elevation

Cecconi's West Wall Elevation
Would you make a reservation to dine at Cecconi's Miami? I hope you liked it and would enjoy this dining experience!
We use cookies to analyze website traffic and optimize your website experience.